Tepelněizolační tvarovka pro bednění věnců a obezdívání stropů pro zdivo z broušených cihel
13. července 2025·Pavel Heinrich , Martin Latislav

Tepelněizolační tvarovka pro bednění věnců a obezdívání stropů pro zdivo z broušených cihel

HELUZ

Ztužující věnce jsou nezbytnou součástí zděných staveb pro zajištění tuhosti stavby a k přenášení účinků zatížení od vodorovných sil. Při návrhu konstrukcí zděné stavby je potřeba najít vhodný kompromis při dimenzování konstrukcí s ohledem na statický návrh, tepelně technické požadavky a proveditelnosti na stavbě. Tyto požadavky určují výši nákladů na zhotovení konstrukce. Zejména u rodinných domů je způsob provedení věnců rozmanitý.

Typické příklady jsou vyobrazeny na obr. 1. Každé řešení má své výhody i nevýhody. Ale obecně platí, že čím větší je objem železobetonového prvku ve zděné konstrukci, zejména na šířku, tím je potřeba věnovat více pozornosti tepelné izolaci konstrukčního detailu. Typickým příkladem je styčník stěny a střechy, či průběžný věnec ve štítu stavby. Dalším typickým místem, které si zaslouží pozornost je styčník strop – stěna u více podlažních domů. Důvodem je novelizovaný postup statického schématu podle nové generace Eurokódu 6 resp. podle ČSN EN 1996-1-1, kdy se oproti současné normě platné do 30. 3. 2028 pracuje jinak s excentricitami v místě uložení stropu na stěnu. Bude tak zřejmě nutné zvětšit délku uložení stropních desek a rozšířit je tak více k vnějšímu líci zdiva. To přináší tlak na řešení tohoto detailu po všech stavebních stránkách, i po stránce tepelné izolace. Tyto dva stavebně konstrukční problémy byly motivací pro vývoj nového typu bednicí tvarovky společně se zachováním cihelného podkladu pro omítky a snadným zhotovením bednění na stavbě.

Nová věncovka pro zdivo z broušených cihel

Standardní věncovky mají šířku 80 mm a poměrně malý tepelný odpor. Často slouží jen jako ztracené bednění v oblasti věnců pod pozednicí. V oblasti stropů se věncovky někdy nahrazují jinými prvky jako jsou jiné druhy zdicích prvků nebo se do líce zdiva použije vytažený izolant např. expandovaný polystyren. Takováto řešení nejsou vhodná používat zejména u jednovrstvého zdiva z tepelně izolačních cihel, neboť vedou k většímu riziku trhlin ve vnějších omítkách, a proto je třeba při omítání přijmout nezbytná, a tudíž dražší opatření. Je potřeba mít na paměti, že kombinace materiálů je nepříznivá i z interiérové strany zdiva.

Nová tepelně izolační tvarovka se vyznačuje malou tloušťkou, lepší tepelnou izolací a rychlou zpracovatelností na stavbě. Porovnání základních vlastností věncovek je uvedeno v tabulce 1. Nové věncovky jsou určeny pouze pro zdivo z broušených cihel, zdí se na systémovou zdicí PU pěnu a pro zajištění stability při lití čerstvého betonu do věnce se používají systémové kotvicí prvky. Nepostradatelnou vlastností je dobrá opracovatelnost zdicí tvarovky, která je důležitá pro tvarování bednění či ořezávání např. při průchodu krokví. Příklady užití nového typu věncovek je uvedeno na obr. 2.

Obrázek 2 – Příklady provedení ztužujících věnců s novými tvarovkami.
Obrázek 2 – Příklady provedení ztužujících věnců s novými tvarovkami.

Příklady řešení konstrukčních detailů s novou věncovkou

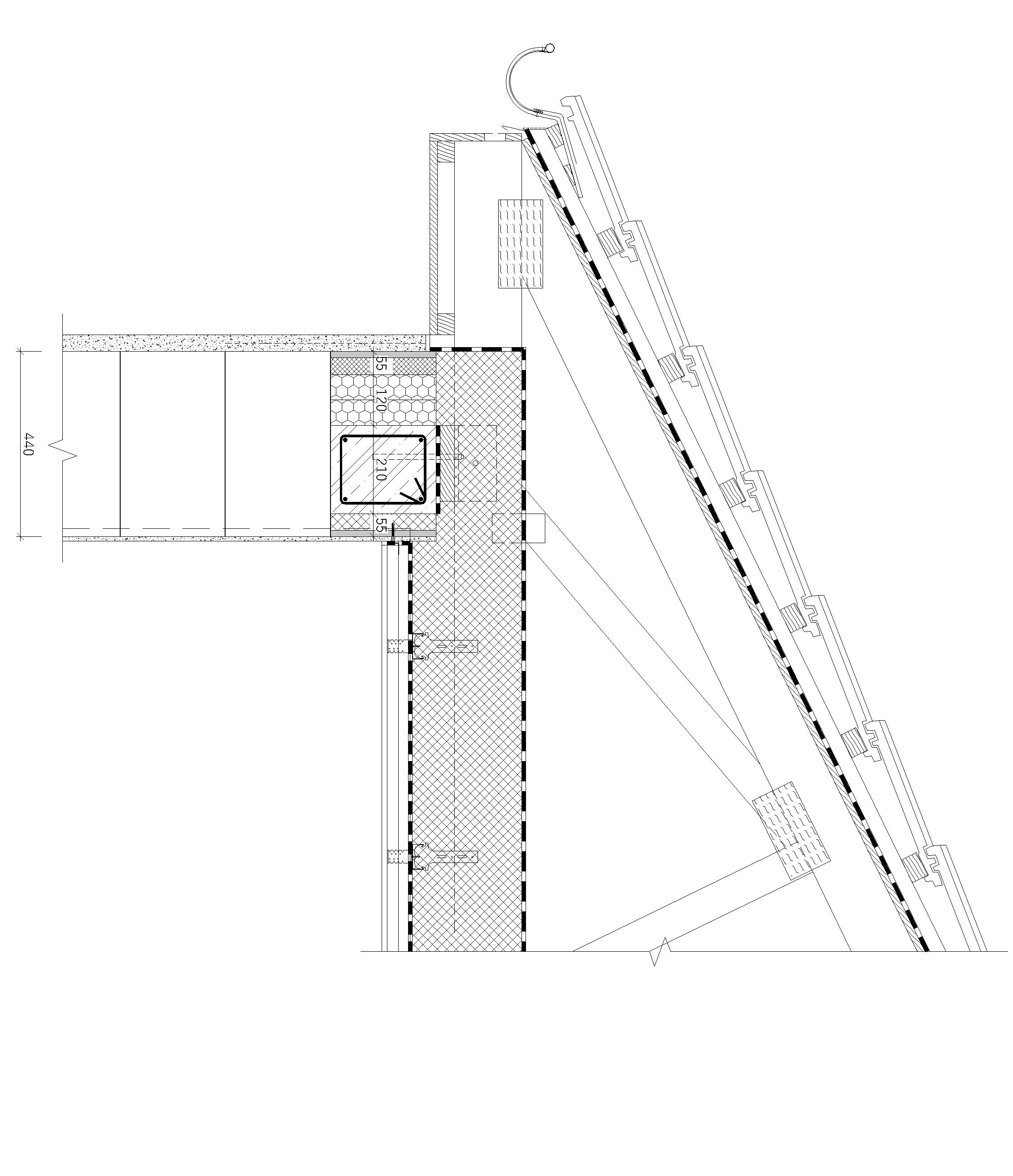
Jako příklady použití si můžeme uvést konstrukční detail v místě pozednice a věnce probíhajícího věnce ve šítu v jednovrstvém zdivu z tepelně izolačních cihel šířky 440 mm. Pro ilustraci místa detailů je uveden obr. 3. Konstrukční řešení ve věnci odpovídá i vhodnému statickému návrhu s ohledem na přípustné přesazení cihel přes vnější i vnitřní líc železobetonového věnce.

Tepelně technické hodnocení jsou uvedeny v následujících tabulkách. Je vidět, že vnitřní povrchové teploty jsou dostatečně vysoké. V detailu pozednice je lineární činitel prostupu tepla záporný, tudíž žádný tepelný most nevzniká. V místě štítu je lineární činitel prsotupu tepla malý, splňující doporučenou hodnotu podle ČSN 73 0540-2.

Obrázek 2 – Příklady provedení ztužujících věnců s novými tvarovkami.
Obrázek 2 – Příklady provedení ztužujících věnců s novými tvarovkami.

Tabulka 2 – Tepelně technické hodnocení detailu napojení stěny z jednovrstvého zdiva z cihel HELUZ FAMILY 44 2in1 broušená a lehkého stropu pod střechou

Tabulka 3 – Tepelně technické hodnocení detailu železobetonového věnce procházející štítovou stěnou z jednovrstvého zdiva z cihel HELUZ FAMILY 44 2in1 broušená

Závěr

Nové tepelněizolační bednicí tvarovky pro zdivo z broušených cihel vhodně doplňují cihlářský sortiment doplňkových cihel pro funkční řešení konstrukčních detailů s ohledem na statické a tepelně technické požadavky.

Obrázek 3 – Ilustrační umístění řešených konstrukčních detailů.
Obrázek 3 – Ilustrační umístění řešených konstrukčních detailů.

Literatura:

[1] ČSN EN 1996-1-1:2024 Eurokód 6: Navrhování zděných konstrukcí - Část 1-1: Obecná pravidla pro vyztužené a nevyztužené zděné konstrukce

[2] ČSN 73 0540-2:2011 Tepelná ochrana budov - Část 2: Požadavky

[3] Archiv HELUZ

HELUZ GROUP Newsroom